Trujillo

Piura

Lurín

Chiclayo

Desarrollo de Proyectos

Sabemos que no todas las empresas tienes las mismas necesidades, por ello nos adaptamos para brindarles las mejores soluciones. En sociedad con nuestros clientes, podemos construir almacenes desde cero, que cumplan con sus requerimientos específicos. También trabajamos proyectos mixtos, que pueden incluir Showroom, oficinas administrativas o espacios comerciales.

Proyecto: Scania

Estado: Entregado Tipo de proyecto: Industrial/Comercial Ubicación: Trujillo - Moche Área operativa y Showroom: 5,900 m² Oficinas y áreas comunes: 503 m² Tiempo de construcción: 4 meses Construcción de local con formato estándar internacional de Scania. Adicionalmente se tramitaron también la licencia municipal y de funcionamiento para el cliente dentro de los primeros 4 meses.

Proyecto:

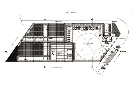
Ágora Strip Mall

Estado: En construcción Tipo de proyecto: Comercial Ubicación: Trujillo - Moche Área comercial: 4,000 m² Estacionamiento y áreas comunes: 3,550 m² El Mall consta de 42 Stands entre 50 y 60 m2, distribuidos entre los 02 niveles de la edificación, 02 locales para Restaurantes y un local para una Tienda Ancla de 1,350 m2, ubicado en el primer nivel de la edificación.

Proyecto:

Piura Futura

Estado: Disponible Tipo de proyecto: Industrial/Comercial Ubicación: Piura Futura, Parque industrial Área disponible: 4,000 m² Tenemos 4,000 m² disponibles en el nuevo parque industrial de Piura, ubicado a pocos minutos de la ciudad y en la misma Panamericana Norte. Un espacio especialmente diseñado para el desarrollo industrial, con amplios ingresos y salidas para camiones y furgones.

Proyecto: Chiclayo -

La Victoria

Estado: Disponible Tipo de proyecto: Industrial Ubicación: Chiclayo - La Victoria Área disponible: 10,000 m² Tenemos 10,000 m² de terreno en centro logístico, ubicado a pocos minutos del centro de la ciudad y en la misma Panamericana Norte. Además, contamos con naves y oficinas ya construidas, disponibles para alquiler.

Proyecto:

Chiclayo - Praxair

Estado: En construcción Tipo de proyecto: Industrial Ubicación: Chiclayo - La Victoria Nave de almacenaje: 100 m² Oficinas y áreas comunes: 900 m² Tiempo de construcción: 4 meses Proyecto de 1,000 m² con salida directa a la Panamericana Norte. Consta de oficinas, áreas comunes y una amplia área de almacenamiento. Este proyecto cumple a la medida con los requerimientos planteados y busca facilitar las operaciones diarias y brindar comodidad a nuestro cliente.

Proyecto:

Lurín - San Pedro

Estado: Disponible Tipo de proyecto: Industrial/Comercial Ubicación: Lurín - Lima Área disponible: 8,000 m² 8,000 m² disponibles en Lurín, en la Panamericana Sur, a una cuadra del puente de San Pedro y a 10 minutos de viaje de Lima.

Proyecto:

Danper

Estado: Entregado Tipo de proyecto: Industrial Ubicación: Trujillo - Moche Nave de empaque: 4,814 m² Oficinas y áreas comunes: 3,373 m² Tiempo de construcción: 3 meses Construcción a medida de cafetería, áreas comunes y naves de empaque, donde también se implementaron conexiones eléctricas especializadas para soportar 8 líneas de empaque.

Proyecto:

Centro logístico de Albo

Estado: Entregado Tipo de proyecto: Industrial Ubicación: Piura Nave de almacenamiento: 7,000 m² Oficinas y áreas comunes: 3,000 m² Tiempo de construcción: 6 meses Tenemos en Piura un área disponible de 90,000 m² para desarrollo de proyectos, ubicados en el centro logístico de Albo.

Trujillo

Piura

Lurín

Chiclayo

Desarrollo de Proyectos

Sabemos que no todas las empresas tienes las mismas necesidades, por ello nos adaptamos para brindarles las mejores soluciones. En sociedad con nuestros clientes, podemos construir almacenes desde cero, que cumplan con sus requerimientos específicos. También trabajamos proyectos mixtos, que pueden incluir Showroom, oficinas administrativas o espacios comerciales.

Proyecto: Scania

Estado: Entregado Tipo de proyecto: Industrial/Comercial Ubicación: Trujillo - Moche Área operativa y Showroom: 5,900 m² Oficinas y áreas comunes: 503 m² Tiempo de construcción: 4 meses Construcción de local con formato estándar internacional de Scania. Adicionalmente se tramitaron también la licencia municipal y de funcionamiento para el cliente dentro de los primeros 4 meses.

Proyecto:

Ágora Strip Mall

Estado: En construcción Tipo de proyecto: Comercial Ubicación: Trujillo - Moche Área comercial: 4,000 m² Estacionamiento y áreas comunes: 3,550 m² El Mall consta de 42 Stands entre 50 y 60 m2, distribuidos entre los 02 niveles de la edificación, 02 locales para Restaurantes y un local para una Tienda Ancla de 1,350 m2, ubicado en el primer nivel de la edificación.

Proyecto:

Danper

Estado: Entregado Tipo de proyecto: Industrial Ubicación: Trujillo - Moche Nave de empaque: 4,814 m² Oficinas y áreas comunes: 3,373 m² Tiempo de construcción: 3 meses Construcción a medida de cafetería, áreas comunes y naves de empaque, donde también se implementaron conexiones eléctricas especializadas para soportar 8 líneas de empaque.

Proyecto:

Piura Futura

Estado: Disponible Tipo de proyecto: Industrial/Comercial Ubicación: Piura Futura, Parque industrial Área disponible: 4,000 m² Tenemos 4,000 m² disponibles en el nuevo parque industrial de Piura, ubicado a pocos minutos de la ciudad y en la misma Panamericana Norte. Un espacio especialmente diseñado para el desarrollo industrial, con amplios ingresos y salidas para camiones y furgones.

Proyecto:

Centro logístico

de Albo

Estado: Entregado Tipo de proyecto: Industrial Ubicación: Piura Nave de almacenamiento: 7,000 m² Oficinas y áreas comunes: 3,000 m² Tiempo de construcción: 6 meses Tenemos en Piura un área disponible de 90,000 m² para desarrollo de proyectos, ubicados en el centro logístico de Albo.

Proyecto: Chiclayo -

La

Victoria

Estado: Disponible Tipo de proyecto: Industrial Ubicación: Chiclayo - La Victoria Área disponible: 10,000 m² Tenemos 10,000 m² de terreno en centro logístico, ubicado a pocos minutos del centro de la ciudad y en la misma Panamericana Norte. Además, contamos con naves y oficinas ya construidas, disponibles para alquiler.

Proyecto:

Chiclayo -

Praxair

Estado: En construcción Tipo de proyecto: Industrial Ubicación: Chiclayo - La Victoria Nave de almacenaje: 100 m² Oficinas y áreas comunes: 900 m² Tiempo de construcción: 4 meses Proyecto de 1,000 m² con salida directa a la Panamericana Norte. Consta de oficinas, áreas comunes y una amplia área de almacenamiento. Este proyecto cumple a la medida con los requerimientos planteados y busca facilitar las operaciones diarias y brindar comodidad a nuestro cliente.

Proyecto:

Lurín - San Pedro

Estado: Disponible Tipo de proyecto: Industrial/Comercial Ubicación: Lurín - Lima Área disponible: 8,000 m² 8,000 m² disponibles en Lurín, en la Panamericana Sur, a una cuadra del puente de San Pedro y a 10 minutos de viaje de Lima.

Copyright ©  Carranza S.A. 
Todos los derechos reservados.

Copyright ©  Carranza S.A. 
Todos los derechos reservados.